Hiša, 2025, 106.9 m2

Številka licence: 03007
Posredujemo pri prodaji ene enote v novi, klasično grajeni dvostanovanjski hiši v mirnem in novo nastajajočem naselju v občini Litija. Enota se prodaja v 4. gradbeni fazi in ima 106,86 m2 bivalnih površin, pripadajoče zemljišče ter nadstrešek za dva avtomobila. Predviden prevzem spomladi 2026. Nepremičnina ima urejeno ZK stanje in je brez bremen.
Na voljo je le še ena enota v dvostanovanjski hiši.
Oglaševana cena je za eno enoto!
ZUNANJOST IN OKOLICA
Ta čudovita klasično grajena dvostanovanjska hiša stoji v novonastajajoči in urejeni soseski družinskih dvostanovanjskih hiš v mirnem naselju, v občini Litija. Dostop je urejen preko novega asfaltiranega dovoza (slepa ulica), ki se priključi na občinsko asfaltirano cesto. Nepremičnina leži na robu soseske, zato ponuja veliko mero zasebnosti. Lokacija omogoča hiter dostop do celotne infrastrukture, ki je v bližnjem mestnem središču Litije.
Enoti pripada zemljišče velikosti 281,5 m2. V naravi bo zemljišče predstavljalo urejen okrasni vrt z zelenico in teraso na jugozahodni strani ter tlakovanim dvoriščem z nadstreškom za dva avtomobila na severovzhodni strani.
Hiša je zgrajena po najnovejših gradbenih standardih:
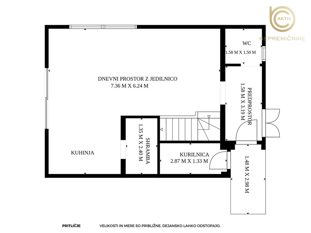
RAZPOREDITEV PROSTOROV
Prostori v enoti so razporejeni v dveh etažah, in sicer z dnevno-bivalnimi prostori v pritličju ter spalnimi prostori v nadstropju (skupaj 106,86 m2). Obe etaži sta med seboj povezani z notranjim armiranobetonskim stopniščem.
Pritličje (52,71 m2):
Nadstropje (54,15 m2):
Nad nadstropjem je hladna podstreha. Tlaki med vsemi etažami so iz armiranega betona.
Hiša se prodaja v 4. gradbeni fazi, kar vključuje:
Oglaševana cena je za eno enoto!
Lokacija nepremičnine in bližina infrastrukture:
Lokacijo nepremičnine odlikuje dobra prometna povezanost s središčem mesta in bližina vseh potrebnih infrastrukturnih ustanov (osnovna šola, vrtec, gimnazija so od lokacije oddaljeni 100 m). Lokacija je ravno prav oddaljena od mestnega vrveža, kar omogoča kakovostno preživljanje prostega časa. Vsa pomembnejša infrastruktura je v samem mestu.
DODATNO
Nepremičnina bo pripravljena na prevzem predvidoma spomladi 2026.
Bivanje v tej čudoviti novogradnji bo navdušilo vsakogar, ki si želi življenja v kakovostno zgrajeni novogradnji na lokaciji, ki omogoča veliko mero zasebnosti ter ceni bivanje v hiši, ki je ravno prav odmaknjena od mestnega vrveža, hkrati pa omogoča hiter dostop do vse pomembnejše infrastrukture.
Ne zamudite priložnosti za ogled te zanimive nepremičnine. Kontaktirajte nas, da se dogovorimo za termin ogleda preden bo prepozno!
Vabljeni na ogled!
Pogoj prodajalca je, da kupec prevzame plačilo stroškov posredovanja v znesku 2 % od dogovorjene pogodbene vrednosti.