Poslovni prostor, 1982, 166.8 m2

Številka licence: 03296
Posredujemo pri prodaji urejenega, svetlega in funkcionalno zasnovanega poslovnega prostora na izjemni lokaciji v samem centru Domžal, v poslovno-stanovanjskem kompleksu SPB, poleg cvetličarne Omers. Poslovni prostor je razporejen v dveh etažah, pritličju in kleti, s skupno površino 166,8 m2. Poleg prodaje je po dogovoru možna tudi dolgoročen najem. ZK urejeno in brez bremen.
Poslovni prostor ima vhod neposredno iz pasaže v pritličju, opremljen z avtomatskimi drsnimi vrati ter izložbo, kar zagotavlja dobro vidnost in dostopnost – tudi za gibalno ovirane osebe. Zaradi svoje razporeditve in lokacije je primeren za trgovino, storitvene dejavnosti, pisarne, salone ali druge poslovne dejavnosti.
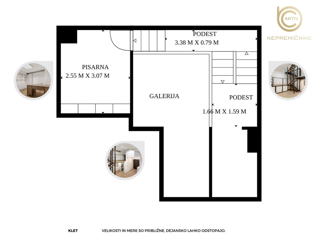
RAZPOREDITEV PROSTOROV:
Pritličje:
Klet:
Poslovni prostor je odlično tehnično opremljen. Objekt je priključen na mestni vodovod, električno omrežje s 3-faznim tokom ter optično internetno povezavo, ki je na voljo tudi v kletnih prostorih. Po tleh so keramične ploščice. Vgrajeni so novi senzorji za dim, prav tako so pripravljene inštalacije za alarmni sistem. Prostori se ogrevajo preko radiatorjev z digitalnimi merilci porabe, sanitarna voda pa se ogreva preko električnega bojlerja.
Okolica objekta je urejena, dostop do nepremičnine pa je omogočen neposredno iz pasaže. Parkiranje za zaposlene je zagotovljeno z uporabo daljinca, ki omogoča dostop do garažnega parkiranja v kletni etaži objekta, parkiranje za stranke pa je na voljo na zunanjih parkirnih površinah v neposredni bližini.
Poslovni prostor je delno opremljen in na voljo takoj. Poleg prodaje je po dogovoru možna tudi dolgoročna oddaja poslovnega prostora.
DODATNO:
Na željo lastnika vas prosimo, da se na oglede ne odpravljate sami. Pokličite nas in z veseljem se bomo dogovorili za termin, ki bo ustrezal vsem.
Nepremičnino prodaja pravna oseba, zato se ob dogovorjeni pogodbeni ceni zaračuna davek na dodano vrednost (DDV)!
Pogoj za sklenitev pravnega posla je, da kupec plača stroške posredovanja v znesku 2 % (+DDV) od dogovorjene pogodbene vrednosti.