Parcela, 1566 m2

Številka licence: 03007
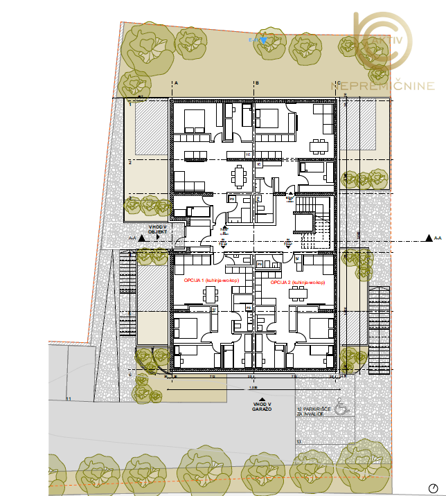
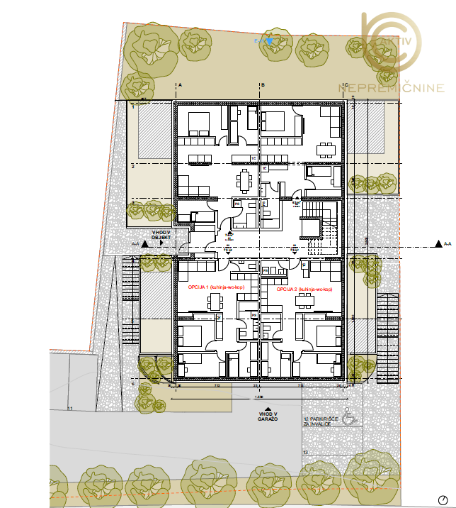
Posredujemo pri prodaji stavbnega zemljišča v izmeri 1.566 m² na izjemni, sončni lokaciji v naselju Lukovica pri Domžalah. Po namenski rabi je zemljišče primerno za gradnjo večstanovanjske stavbe. Izdelana je tudi že idejna zasnova za objekt z 11 stanovanji in parkirišči, kar predstavlja odlično investicijsko priložnost. Parcela je rahlo nagnjena, ZK urejena in brez bremen. Prodajalec je pravna oseba, zato se na pogodbeno vrednost obračuna še 22 % DDV.
Prednosti zemljišča:
Bližina infrastrukture:
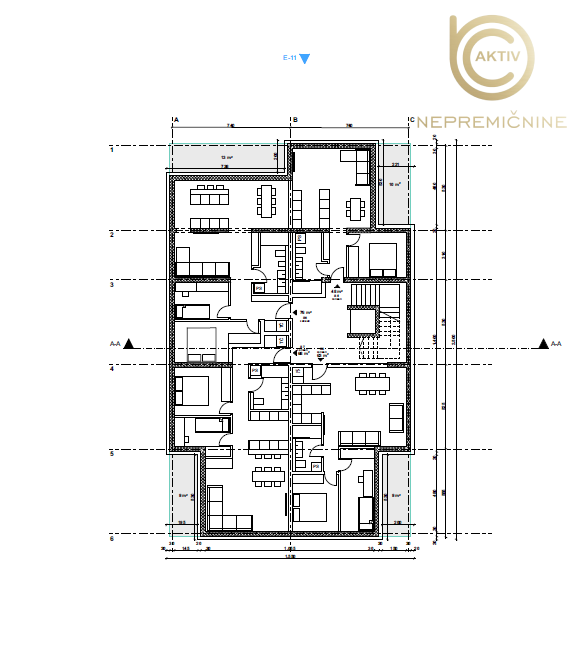
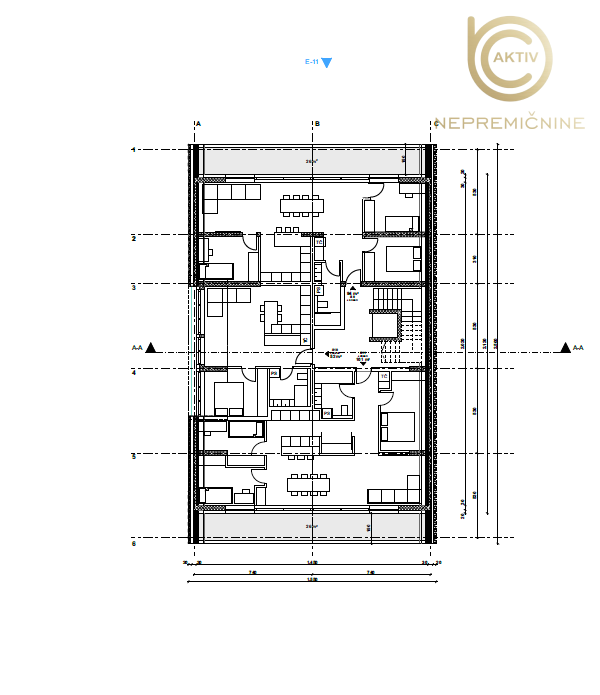
Zemljišče je v celoti stavbno. Skladno s sprejetim podrobnim Občinskim prostorskim načrtom Občine Lukovica je na parceli dovoljena gradnja večstanovanjskih stavb. Za parcelo je izdelana idejna zasnova z naslednjimi značilnostmi:
Zunanja ureditev in bivalno ugodje:
Za stanovalce so predvidena:
Zemljišče predstavlja odlično investicijsko priložnost z vidika lokacije, infrastrukturne opremljenosti in dolgoročnega razvojnega potenciala območja. Zaradi že izdelane idejne zasnove in jasnih prostorskih pogojev je projekt primeren za takojšnji razvoj ter ponuja stabilen in predvidljiv investicijski donos.
Na željo prodajalca vas prijazno prosimo, da se na oglede ne odpravljate sami – z veseljem vas bomo osebno popeljali po lokaciji in odgovorili na vsa vprašanja.
Prodajalec je pravna oseba, zato se na dogovorjeno ceno 380 EUR/m² skladno z zakonodajo obračuna še 22 % DDV.
Vabljeni na ogled!
Pogoj za sklenitev pravnega posla je, da kupec prevzame plačilo stroškov posredovanja v višini 2 % (+ DDV) od dosežene pogodbene cene.