Hiša, 1850, 440 m2

Številka licence: 03560
Posredujemo pri prodaji prostorne staromeščanske hiše na odlični lokaciji v centru Ljubljane, v neposredni bližini strogega mestnega jedra Ljubljane. Lokacija hiše omogoča čudovit pogled na Ljubljanski grad. Prostori so razporejeni v petih etažah (K+P+1+2+hladna podstreha). Hiši pripada stavbno zemljišče v velikosti 658 m2. Redka priložnost v osrčju Ljubljane.
Staromeščanska hiša v skupni velikosti 440 m2 stoji na odlični lokaciji v neposredni bližini Trubarjeve ceste v centru Ljubljane.
Prostori so odprti, svetli in povezani z balkoni s pogledom na Ljubljanski grad. Za hišo so dvorišče, čudovit vrt in delavnica.
Zgrajena je bila leta 1850 in je potrebna prenove.
Hiši pripada stavbno zemljišče v skupni velikosti 658 m2.
Strešna kritina je bila zamenjana leta 2006. V 2. nadstropju so bila leta 2011 zamenjana 2-slojna PVC okna.
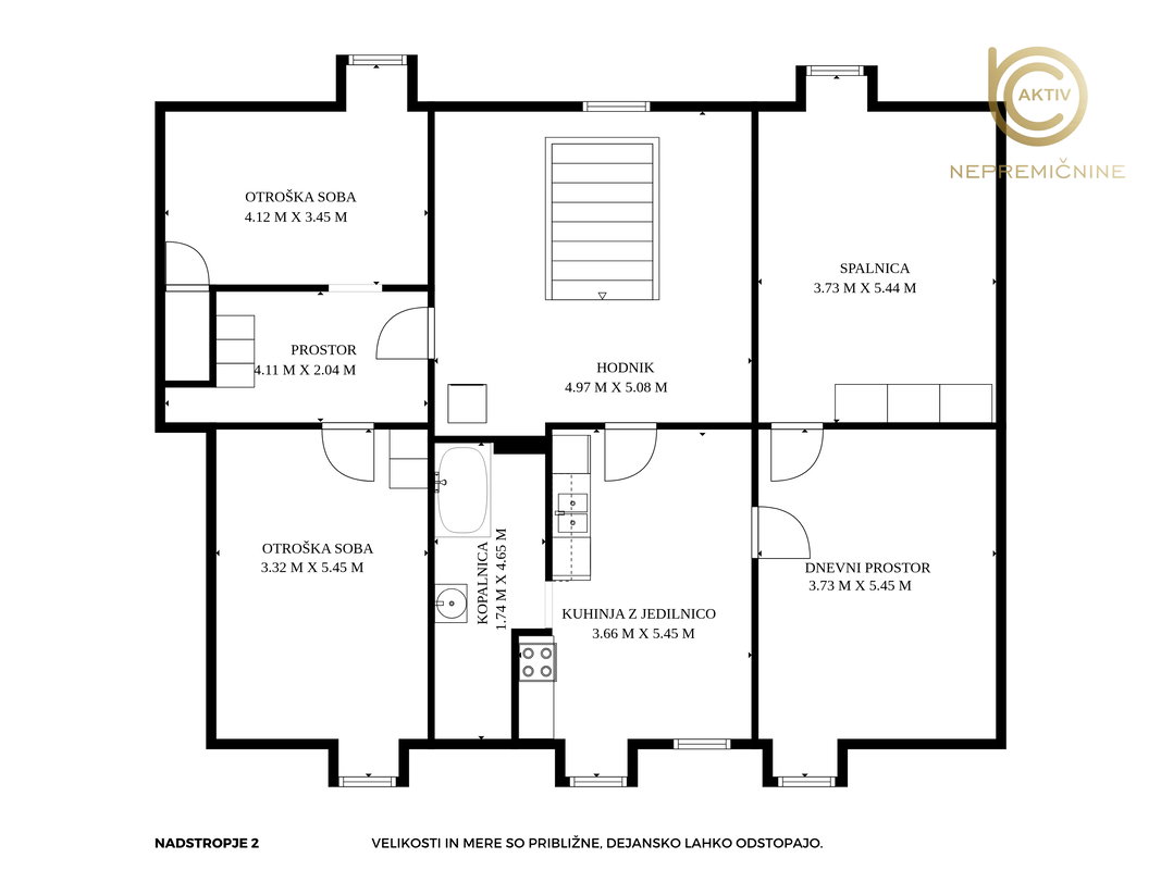
RAZPOREDITEV:
Prostori so razporejeni v petih etažah, in sicer v kleti, pritličju, 1. in 2. nadstropju ter na hladni podstrehi.
Vsaka etaža ima lasten električni števec. Vse etaže med seboj povezuje notranje stopnišče s hodnikom. S hodnika v pritličju dostopamo do dvorišča, vrta in delavnice.
Priključki:
Lokacija:
Staromeščanska hiša je redka priložnost v osrčju Ljubljane, tik ob strogem mestnem jedru starega dela Ljubljane.
Vsa infrastruktura (osnovna šola, vrtec, trgovine, glavna avtobusna postaja, železniška postaja, banke, pošta, itd.), številne turistične atrakcije, kavarne, restavracije so zaradi lokacije nepremičnine v neposredni bližini dostopne peš.
Dodatno:
Redka priložnost za nakup večje staromeščanske hiše z zemljiščem v centru Ljubljane, primerna za prenovo, večstanovanjsko ureditev ali kombinacijo bivanja in poslovne dejavnosti.
Vabljeni na ogled.
Pogoj za sklenitev kupoprodajne pogodbe je, da kupec poravna strošek posredovanja v višini 2 % (+ DDV) od dogovorjene pogodbene vrednosti.